HEIKE SCHÜTTELHÖFER ARCHITEKTIN
Ansicht Nordwest Bestand Ansicht Ost Bestand
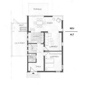
Grundriss
Detail

Umbau Wohnhaus in Koblenz 2002-04

Gebäudedaten
Planungsbeginn: Ende 2003
Fertigstellung: Dez. 2004
Wohnfläche: rd 164 qm

Straßenansicht Gartenansicht
Projekte, Wettbewerbe Architektur Innenarchitektur Wettbewerbe
Referenzen Biografie, Referenzliste Adresse, E-mail, Mailinglist Links Startseite