HEIKE SCHÜTTELHÖFER ARCHITEKTIN
Gesamtansicht Treppenturm
Detail Gaube Ansicht Westseite
Detail Treppenturm

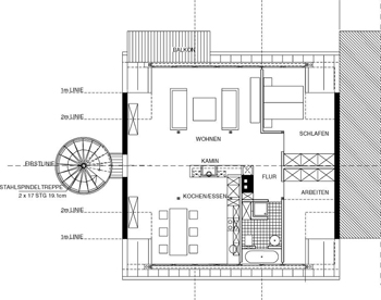
Umbau Wohnhaus in Koblenz 1997

Gebäudedaten
Bauantrag: Jan . 1997
Fertigstellung: Okt. 1997
Wohnfläche neu: rd. 85 qm

Eingangssteg Umbau Wohnhaus in Koblenz | Innenarchitektur
Projekte, Wettbewerbe Architektur Innenarchitektur Wettbewerbe
Referenzen Biografie, Referenzliste Adresse, E-mail, Mailinglist Links Startseite