HEIKE SCHÜTTELHÖFER ARCHITEKTIN
Wohnraum
Wohnraum | Buche Stabparkett| Schankeinbauten MDF Lackiert Regal Raumteiler Architektenentwurf
Raumteiler /Einbauschränke Architektenentwurf

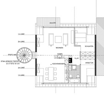
Umbau Wohnhaus in Koblenz 1997

Gebäudedaten
Bauantrag: Jan . 1997
Fertigstellung: Okt. 1997
Wohnfläche neu: rd. 85 qm

Grundriss Einbauschränke
Projekte, Wettbewerbe Architektur Innenarchitektur Wettbewerbe
Referenzen Biografie, Referenzliste Adresse, E-mail, Mailinglist Links Startseite